719 18th Ave

Irvington Twp, NJ 07111


 

Price: $399,000

GSMLS:  4008059
Type: Multi-Family
Style: 2-Two Story
Total Units: 2
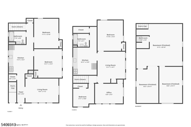
Beds: 5
Baths: 3 Full
Garage: 1-Car
Year Built: 1928
Acres: 0.06
Property Tax: $11,377
Description
Open House Saturday 12PM–2PM.
Welcome home to this well-maintained 5-bedroom, 3-bath Multifamily property ideally located just off the Garden State Parkway truly a commuter's dream. The tastefully updated first-floor unit begins with an inviting entry foyer that leads into a bright, sunlit living room designed for comfort and conversation. Down the hall, the kitchen showcases custom cabinetry, granite countertops, and appliances. The primary bedroom serves as a private retreat with a generous closet, while an additional bedroom and a full bathroom complete the unit. The second floor unit features a spacious living room, perfect for relaxing at the end of the day. The primary bedroom offers a large closet, while the second bedroom provides flexibility as a home office or den. Third bedroom and a full bathroom completes this unit. The full unfinished basement offers a full bathroom and presents excellent potential for bonus living space or storage. A one-car detached garage and ample driveway parking add convenience with off-street parking and additional storage options Ideally situated near major highways, shopping, and transportation, this property offers exceptional convenience and presents a fantastic opportunity for an investment property, owner-occupant living, or a unique living arrangement.
General Info
Style:
2-Two Story
SqFt Building:
n/a
Total Rooms:
9
Basement:
Yes - Full, Unfinished
Interior:
n/a
Roof:
Asphalt Shingle
Exterior:
Brick, Vinyl Siding
Lot Size:
35.42 X 74
Lot Desc:
Level Lot
Parking
Garage Capacity:
1-Car
Description:
Detached Garage
Parking:
1 Car Width, Driveway-Exclusive
Spaces Available:
4
Unit 1
Bedrooms:
2
Bathrooms:
1
Total Rooms:
4
Room Description:
Bedrooms, Kitchen, Living Room
Levels:
1
Square Foot:
n/a
Fireplaces:
n/a
Appliances:
Range/Oven - Gas, Refrigerator
Utilities:
Owner Pays Electric, Owner Pays Gas, Owner Pays Heat, Owner Pays Water
Handicap:
No
Unit 2
Bedrooms:
3
Bathrooms:
1
Total Rooms:
5
Room Description:
Bedrooms, Kitchen, Living Room
Levels:
1
Square Foot:
n/a
Fireplaces:
1
Appliances:
Range/Oven - Gas, Refrigerator
Utilities:
Tenant Pays Electric, Tenant Pays Gas, Tenant Pays Heat, Tenant Pays Water
Handicap:
No
Unit 3
Bedrooms:
n/a
Bathrooms:
n/a
Total Rooms:
n/a
Room Description:
n/a
Levels:
n/a
Square Foot:
n/a
Fireplaces:
n/a
Appliances:
n/a
Utilities:
n/a
Handicap:
n/a
Unit 4
Bedrooms:
n/a
Bathrooms:
n/a
Total Rooms:
n/a
Room Description:
n/a
Levels:
n/a
Square Foot:
n/a
Fireplaces:
n/a
Appliances:
n/a
Utilities:
n/a
Handicap:
n/a
Utilities
Heating:
Baseboard - Hotwater
Heating Fuel:
Gas-Natural
Cooling:
Central Air
Water Heater:
n/a
Water:
Public Water
Sewer:
Public Sewer
Utilities:
Electric, Gas-Natural
Services:
n/a
School Information
Elementary:
n/a
Middle:
n/a
High School:
IRVINGTON
Community Information
County:
Essex
Town:
Irvington Twp.
Neighborhood:
n/a
Financial Considerations
List Price:
$399,000
Tax Amount:
$11,377
Land Assessment:
$127,900
Build. Assessment:
$316,700
Total Assessment:
$444,600
Tax Rate:
6.20
Tax Year:
2024
Listing Information
MLS ID:
4008059
List Date:
02-03-2026
Days On Market:
0
Listing Broker:
HOWARD HANNA RAND REALTY
Listing Agent:
Hassan Gebril
 

Request More Information

Shawn and Diane Fox
RE/MAX American Dream
3108 Route 10 West
Denville, NJ 07834
Call: (973) 277-7853
Web: FoxHillsRockaway.com


RE/MAX

Town & Valley II

211 Route 10 East
Succasunna, NJ 07876
Office: (973) 598-1008


Shawn and Diane Fox