1709 Route 35 N

Toms River Township, NJ 08751


 

Price: $589,900

GSMLS:  4006319
Type: Condo/Townhouse/Co-op
Style: Multi Floor Unit
Beds: 2
Baths: 1 Full
Garage: No
Year Built: 1992
Acres: 0.00
Property Tax: $6,752
Description
Discover elevated coastal living in Pirates Cove at Ortley Beach. Fully renovated and beautifully updated, this turnkey 2-bedroom residence is offered fully furnished. Arrive with your suitcase and start enjoying the shore. Thoughtful design, modern finishes, and a seamless indoor-outdoor flow set an elegant tone for everyday living and entertaining.The location puts you about a block to the ocean and moments to the Seaside Heights Boardwalk, local dining, and the Seaside Bridge for convenient access on and off the island. Enjoy quick proximity to Barnegat Bay for sunsets, water sports, and marinas.Inside, welcoming living and dining spaces connect to a modern kitchen finished with stone countertops and premium cabinetry. The refreshed bath features open high ceilings with abundant natural light, creating a spa-like retreat. Additional highlights include an in-unit washer and dryer, two private balconies, a front porch, and parking for two vehicles. Residents also enjoy access to a shared courtyard, perfect for gathering with neighbors, and pets are welcome at Pirates Cove. Durable coastal-friendly flooring, curated lighting, and stylish furnishings complete the polished look.Whether you're seeking a refined shore retreat, a year-round residence, or a strong investment at the beach, this home delivers the luxury, convenience, and turnkey simplicity buyers want...right where you want to be. No rental restrictions!
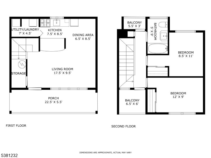
Rooms Sizes
Kitchen:
8x9 First
Dining Room:
7x9 First
Living Room:
18x10 First
Family Room:
n/a
Den:
n/a
Bedroom 1:
12x9 Second
Bedroom 2:
9x11 Second
Bedroom 3:
n/a
Bedroom 4:
n/a
Room Levels
Basement:
n/a
Ground:
n/a
Level 1:
Dining Room, Kitchen, Laundry Room, Living Room, Porch, Utility Room
Level 2:
2 Bedrooms, Bath Main
Level 3:
n/a
Level Other:
n/a
Room Features
Kitchen:
Eat-In Kitchen, Separate Dining Area
Dining Room:
n/a
Master Bedroom:
n/a
Bath:
n/a
Interior Features
Square Foot:
844
Year Renovated:
2022
Basement:
No
Full Baths:
1
Half Baths:
0
Appliances:
Kitchen Exhaust Fan, Microwave Oven, Range/Oven-Gas, Refrigerator, Stackable Washer/Dryer
Flooring:
Tile, Vinyl-Linoleum
Fireplaces:
No
Fireplace:
n/a
Interior:
CeilBeam,CODetect,FireExtg,CeilHigh,SmokeDet,StallTub,WndwTret
Exterior Features
Garage Space:
No
Garage:
n/a
Driveway:
Assigned, Parking Lot-Exclusive
Roof:
Asphalt Shingle
Exterior:
Vinyl Siding
Swimming Pool:
n/a
Pool:
n/a
Utilities
Heating System:
Forced Hot Air
Heating Source:
Gas-Natural
Cooling:
Central Air
Water Heater:
n/a
Water:
Public Water
Sewer:
Public Sewer
Services:
n/a
Lot Features
Acres:
0.00
Lot Dimensions:
n/a
Lot Features:
n/a
School Information
Elementary:
n/a
Middle:
n/a
High School:
n/a
Community Information
County:
Ocean
Town:
Toms River Township
Neighborhood:
Ortley Beach
Application Fee:
n/a
Association Fee:
$213 - Monthly
Fee Includes:
Maintenance-Common Area, Water Fees
Amenities:
Storage
Pets:
Yes
Financial Considerations
List Price:
$589,900
Tax Amount:
$6,752
Land Assessment:
$220,000
Build. Assessment:
$150,800
Total Assessment:
$370,800
Tax Rate:
1.77
Tax Year:
2024
Ownership Type:
Condominium
Listing Information
MLS ID:
4006319
List Date:
01-21-2026
Days On Market:
54
Listing Broker:
KELLER WILLIAMS REALTY
Listing Agent:
Carlo Flores
 

Request More Information

Shawn and Diane Fox
RE/MAX American Dream
3108 Route 10 West
Denville, NJ 07834
Call: (973) 277-7853
Web: FoxHillsRockaway.com


RE/MAX

Town & Valley II

211 Route 10 East
Succasunna, NJ 07876
Office: (973) 598-1008


Shawn and Diane Fox